Home
Portfolio
Services
Testimonials
Contact
Home
Portfolio
Services
Testimonials
Contact
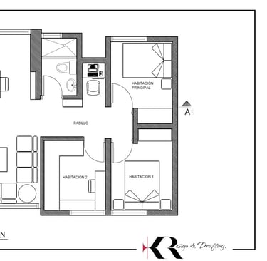
Apartment Renovation
Addition Project
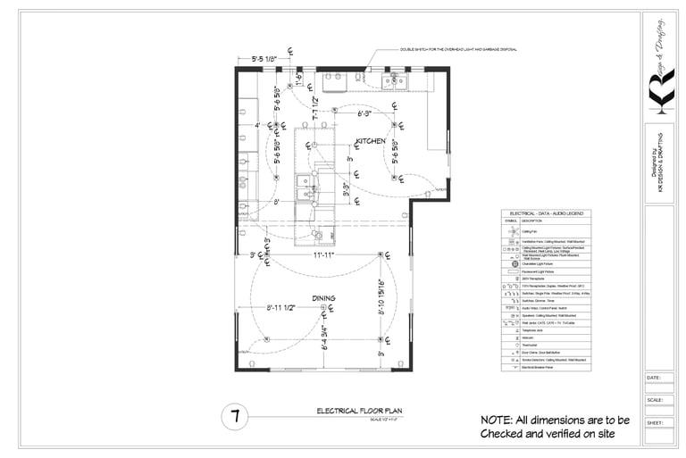
Kitchen Renovation
Contacts
krdesign2022@gmail.com
(678) 760-9100
Socials